Toggle navigation
高陵区城东初级中学设计方案
项目名称:高陵区城东初级中学
项目地点:陕西省西安市
设计单位:森科营造
工程进度:在建
▲ 鸟瞰图(一)
▲ 鸟瞰图(二)
▲ 效果图(一)
▲ 效果图(二)
▲ 效果图(三)
▲ 效果图(四)
▲ 效果图(五)
▲ 项目区位
▲ 总平面图
▲ 功能分区
▲ 流线示意图
▲ 景观视线示意图
▲ 教学楼一层平面图
▲ 教学楼二层平面图
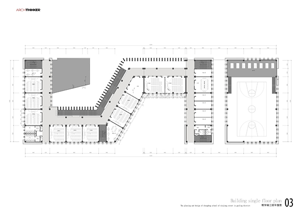
▲ 教学楼三层平面图
▲ 教学楼四层平面图
▲ 教学楼五层平面图
▲ 教学楼一层流线示意图
▲ 教学楼二层流线示意图
▲ 教学楼三层流线示意图
▲ 教学楼四层流线示意图
▲ 教学楼五层流线示意图
▲ 教学楼一层功能分区示意图
▲ 教学楼二层功能分区示意图
▲ 教学楼三层功能分区示意图
▲ 教学楼四层功能分区示意图
▲ 教学楼五层功能分区示意图
设计单位
:ARCHTHINKER | 森科营造
西安森科建筑工程设计咨询有限公司
Copyright © All rights reserved. 股权代码:900334